Vendita
€169.000,00
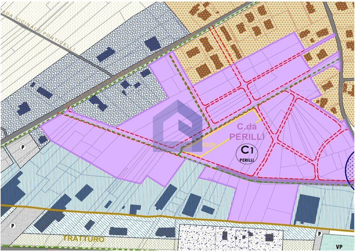
Santa Maria Imbaro – Località Perilli [V1986]
Terreno edificabile in vendita – 4.850 mq
In esclusiva, proponiamo la vendita di un interessante lotto di terreno edificabile di 4.850 mq, situato in località Perilli, nel comune di Santa Maria Imbaro (CH).
L’area, di facile accesso e ottimamente servita dalle principali utenze, rappresenta un’opportunità ideale per investitori e imprese di costruzione.
Il terreno si presta perfettamente alla realizzazione di un complesso residenziale composto da 8 villette indipendenti, ciascuna con ampi spazi esterni e ottima esposizione.
È altresì possibile acquistare lotti singoli, con scelta personalizzata della metratura, per soluzioni su misura.
Prezzo richiesto: € 35,00 al mq
Posizione strategica:
A soli 6 km da Lanciano
3 km dal centro commerciale “Lanciano Centro”
8 km dalla costa adriatica
Un contesto tranquillo e riservato, ma ben collegato e vicino a tutti i principali servizi.
Avviso:
I dati e le immagini si intendono corretti ma non garantiti.
Le caratteristiche tecniche, la disposizione interna e gli accessori indicati potrebbero in alcuni casi essere diversi dall’effettivo stato di fatto dell’immobile.
A causa delle difformità dei dati pubblicati dai vari portali, lo Studio Farina declina ogni responsabilità per eventuali involontarie incoerenze.
Si precisa che le descrizioni riportate non rappresentano alcun impegno contrattuale
Per garantire la privacy l’indirizzo può non rispecchiare esattamente l’ubicazione dell’immobile ed è utile solo al fine di fornire un riferimento generico per la sua localizzazione.
[Agente immobiliare] Geometra, progettista d’interni, consulente presso un noto…
Guarda la mia lista
Atessa, luminoso appartamento in Largo Municipio [V7991]