Vendita
€98.000,00
Ampio appartamento con vista mozzafiato, ideale come investimento o casa dei sogni
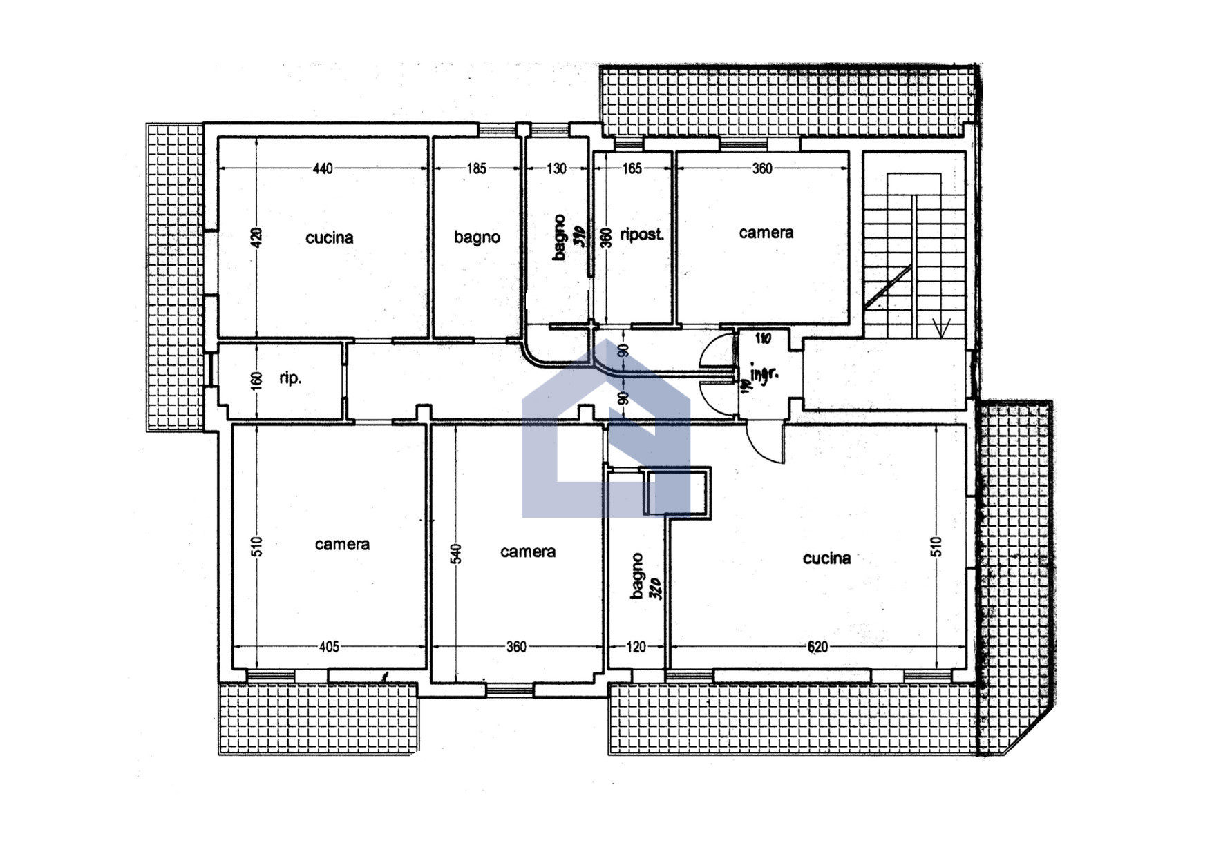
Nel cuore di Monte Marcone di Atessa, proponiamo in vendita un ampio appartamento di 193 mq situato al terzo piano di un tranquillo condominio con poche unità abitative.
Una proprietà dal grande potenziale, attualmente suddivisa in tre appartamenti indipendenti, perfetta per chi desidera mettere a reddito l’investimento.
Se invece sogni una casa unica, spaziosa e luminosa, potrai facilmente riconvertirla in un’unica abitazione, creando la dimora ideale per la tua famiglia.
Dai suoi balconi panoramici potrai ammirare una vista spettacolare sulle colline abruzzesi, un panorama che regala emozioni ogni giorno e che rende questa casa un rifugio di serenità.
La posizione è davvero strategica: a due passi da bar, ristoranti, scuole, farmacia e negozi, e vicinissima alla zona industriale di Atessa, che garantisce comodità e servizi a portata di mano.
Perché sceglierla
193 mq di spazio e luminosità
Attualmente divisa in 3 unità indipendenti
Facile da trasformare in un’unica abitazione
Balconi con vista panoramica
Condominio tranquillo e ben tenuto
Vicinanza a tutti i servizi principali
Prezzo eccezionale: € 98.000
Un’opportunità rara per investitori o per chi desidera creare la propria casa dei sogni in una delle zone più richieste di Atessa.
Da non perdere!
Nota informativa:
I dati e le immagini si intendono corretti ma non garantiti.
Le caratteristiche tecniche, la disposizione interna e gli accessori indicati potrebbero in alcuni casi essere diversi dall’effettivo stato di fatto dell’immobile.
A causa delle difformità dei dati pubblicati dai vari portali, lo Studio Farina declina ogni responsabilità per eventuali involontarie incoerenze.
Si precisa che le descrizioni riportate non rappresentano alcun impegno contrattuale
Per garantire la privacy l’indirizzo può non rispecchiare esattamente l’ubicazione dell’immobile ed è utile solo al fine di fornire un riferimento generico per la sua localizzazione.
[Agente immobiliare] Geometra, progettista d’interni, consulente presso un noto…
Guarda la mia lista
Lanciano, Villa Martelli appartamento in casa singola [V1966/A]